CAD Drawing Services
We provide professional CAD drawing services using accurate survey data and existing drawings to produce clear, precise, and fully layered digital plans. Our CAD drawings are suitable for architectural design, planning applications, construction, and property documentation.
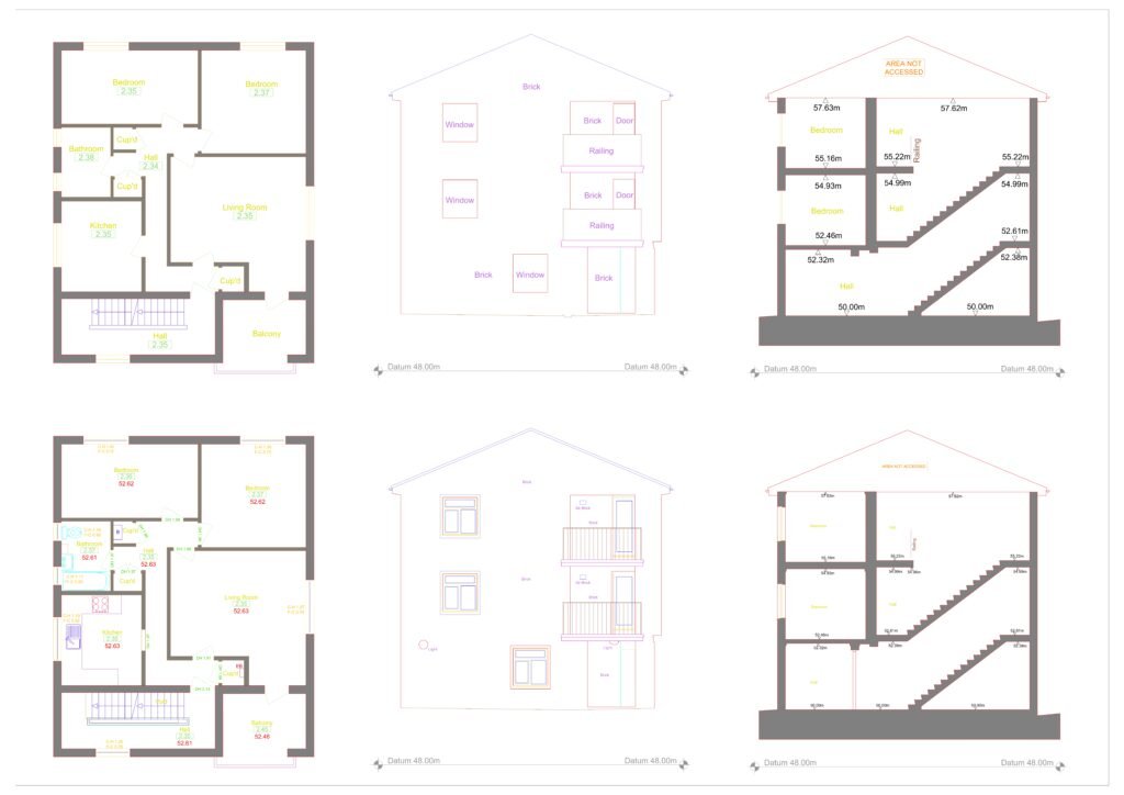
Using industry-standard software, we convert survey data into high-quality 2D drawings, including floor plans, elevations, sections, site plans, and detailed layouts. All drawings are carefully structured with organised layers, line weights, and annotations to ensure clarity and ease of use for architects, designers, and engineers.
Our CAD drawings are delivered in DWG and PDF formats, fully compatible with AutoCAD and other industry software. We can also update, redraw, or amend existing drawings to reflect current site conditions.
Based in Bromley, we provide CAD drawing services across London, Kent, Surrey, and the South East, supporting residential, commercial, and development projects.

What you get
- Clean, layered CAD drawings
- Deliverables: DWG + PDF
- Revisions available (agreed up-front)
Ideal for
- Converting PDFs/sketches into DWG
- Updating as-built drawings
- Drawing packs for design teams
- Standardising drawing formats
What’s included
- Floor plans, elevations, sections
- Site plans / location plans (as required)
- Area schedules (if provided/required)
What we need from you for a fast quote
- Source files (PDF, sketches, photos, existing DWG)
- Required output format + any CAD standards
- Deadline and scope notes
FAQ
What are CAD drawing services?
CAD drawing services involve creating accurate digital drawings using Computer-Aided Design (CAD) software. These drawings are used by architects, engineers, and property professionals for planning, design, construction, and documentation.
What types of CAD drawings do you provide?
We produce a wide range of CAD drawings, including floor plans, elevations, sections, site plans, lease plans, and as-built drawings. All drawings are clear, fully layered, and suitable for planning and construction use.
Can you convert existing drawings into CAD format?
Yes. We can convert hand sketches, PDF files, scanned drawings, or outdated plans into accurate, professional CAD drawings in DWG and PDF formats.
Do you create CAD drawings from survey data?
Yes. We regularly produce CAD drawings from measured building surveys, topographical surveys, and point cloud data captured using professional surveying equipment and laser scanners.
What file formats will I receive?
CAD drawings are typically delivered in DWG and PDF formats. Other formats, including DXF or Revit-compatible files, can be provided on request.
Are your CAD drawings suitable for planning applications?
Yes. Our CAD drawings are suitable for planning applications, building regulations, design development, lease plans, and construction projects.
How accurate are your CAD drawings?
Our CAD drawings are produced using precise survey data and professional workflows, ensuring high accuracy and reliability suitable for professional and legal use.
How long does it take to produce CAD drawings?
Turnaround time depends on the project size and complexity, but most CAD drawing projects are completed within a few working days.
What do you need to provide a quote?
We typically need the property address, type of drawings required, and any existing plans or survey data. You can email your drawings for a fast and accurate quote.
